Loading...
Toggle navigation
Estudio
servicios
Quienes somos
Proyectos
Contacta
PROYECTOS
Reforma, legalización, ampliación y piscina
Campanet
DESCRIPTION
CLIENT:
LUCIA
DATE:
AGOSTO, 2024
ONLINE:
www.summersstudio.es
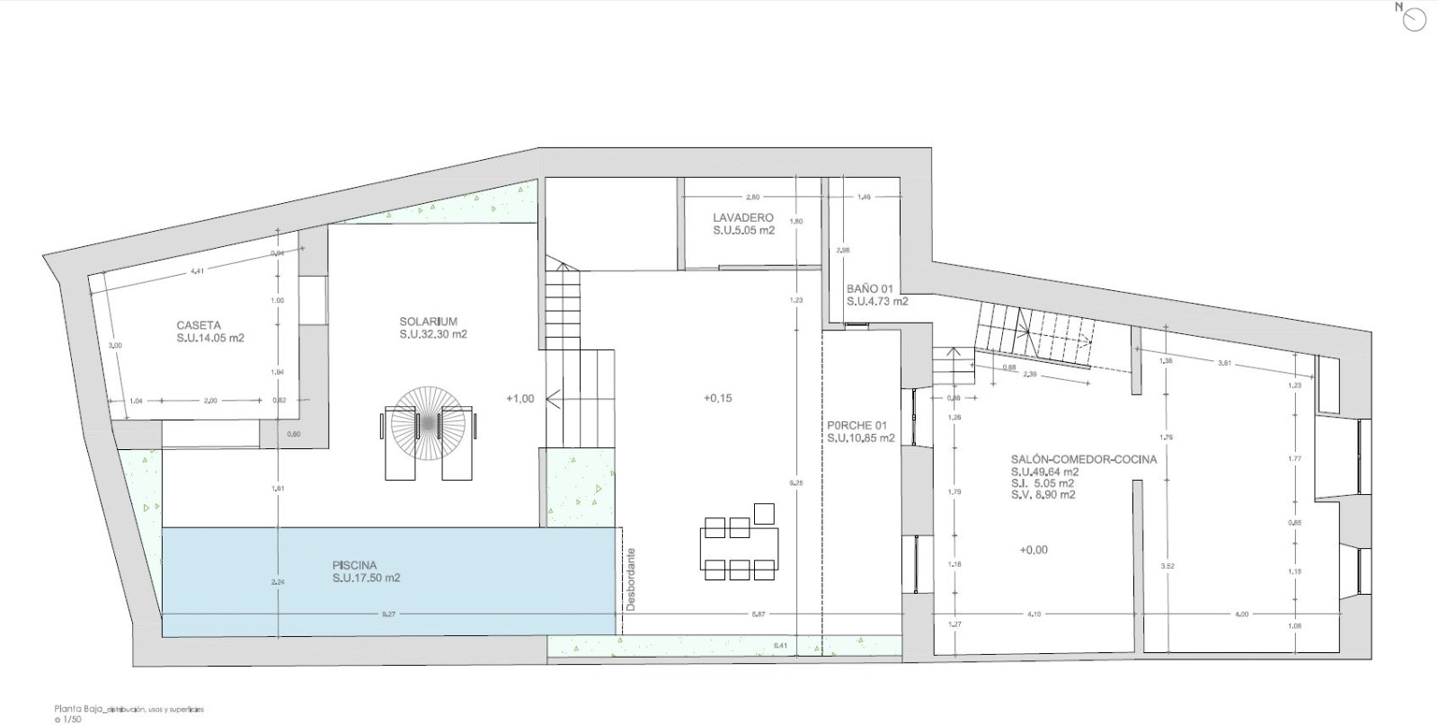
Reforma, legalización, ampliación y piscina de vivienda unifamiliar entre medianeras, en Campanet.
Prev
Next